Verbindet Altbaucharme mit modernen Wohnbedürfnissen und Energieeffizienz.
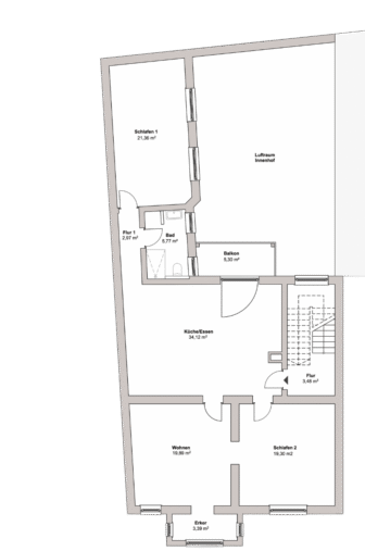
Die 3-Zimmer-Altbauwohnung mit ca. 100 m² Wohnfläche kann nach umfassender Sanierung im Jahr 2025 erstmals bezogen werden. Sie befindet sich im zweiten Obergeschoss eines gepflegten Mehrfamilienhauses mit insgesamt vier Etagen und verfügt über einen einladenden Balkon. Die Wohnung besticht durch eine gehobene Innenausstattung mit hellen Innenräumen, hohen Decken, neuen Türen und hochwertigem Vinylboden. Die Wohnung verfügt über eine energieeffiziente Wärmepumpe sowie eine moderne, wassergeführte Fußbodenheizung, die für ein behagliches und gleichmäßiges Raumklima sorgt. Für die optimale Isolierung sorgen neue Fenster sowie die Innen- und Außendämmung.
Die Rheinanlagen, Cafés, Restaurants und Einkaufsmöglichkeiten sowie der ÖPNV sind nur wenige Schritte entfernt. Auch Schulen, Kindergärten und Ärzte befinden sich in der direkten Umgebung. Hier wohnt man zentral, aber dennoch mit einem angenehmen Maß an Ruhe. Wer kurze Wege schätzt und das Stadtleben mag, ist hier genau richtig.
Bitte fülle das Kontaktformular aus.
Sie sehen gerade einen Platzhalterinhalt von Google Maps. Um auf den eigentlichen Inhalt zuzugreifen, klicken Sie auf die Schaltfläche unten. Bitte beachten Sie, dass dabei Daten an Drittanbieter weitergegeben werden.
Mehr InformationenAltbauwohnung in Koblenz Südliche Vorstadt
Kontakt
Bitte fülle das Kontaktformular aus.
Sie sehen gerade einen Platzhalterinhalt von Google Maps. Um auf den eigentlichen Inhalt zuzugreifen, klicken Sie auf die Schaltfläche unten. Bitte beachten Sie, dass dabei Daten an Drittanbieter weitergegeben werden.
Mehr Informationen
Grundriss 2. OG
Das Gebäude befindet sich derzeit noch im Innenausbau.
Kontakt
Bitte fülle das Kontaktformular aus.
Sie sehen gerade einen Platzhalterinhalt von Google Maps. Um auf den eigentlichen Inhalt zuzugreifen, klicken Sie auf die Schaltfläche unten. Bitte beachten Sie, dass dabei Daten an Drittanbieter weitergegeben werden.
Mehr Informationen


Kontakt
Bitte fülle das Kontaktformular aus.
Sie sehen gerade einen Platzhalterinhalt von Google Maps. Um auf den eigentlichen Inhalt zuzugreifen, klicken Sie auf die Schaltfläche unten. Bitte beachten Sie, dass dabei Daten an Drittanbieter weitergegeben werden.
Mehr Informationen
Erstbezug nach Sanierung: Wohnung mit Altbaucharme in Koblenz-Süd

Schreib uns eine Mail.
Aufgrund der hohen Anzahl an Anfragen bitten wir, von Anrufen abzusehen.

Wetterauer Immobilien GmbH
info@wetterauer.com
+49 261 450 99 474
Karthäuserhofweg 25
56075 Koblenz